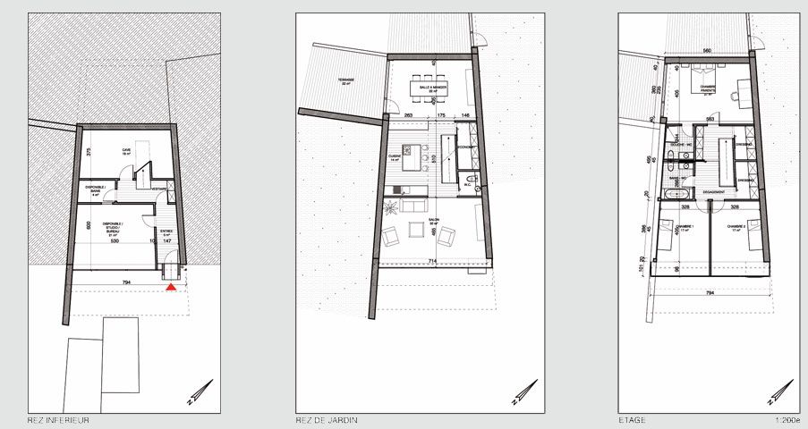
EXAMPLES OF PROJECTS
LIEU Moudon
M.O. Privé

^

© VIRUS ARCHITECTURE - ALL IMAGES ARE COPYRIGHTED
AND MAY NOT BE REPRODUCTED WITHOUT WRITTEN PERMISSION